Nestled down one of Avonhead’s most peaceful cul-de-sacs, minutes from Avonhead Shopping centre, and zoned for Burnside High, 2/12 Algie Place awaits you.
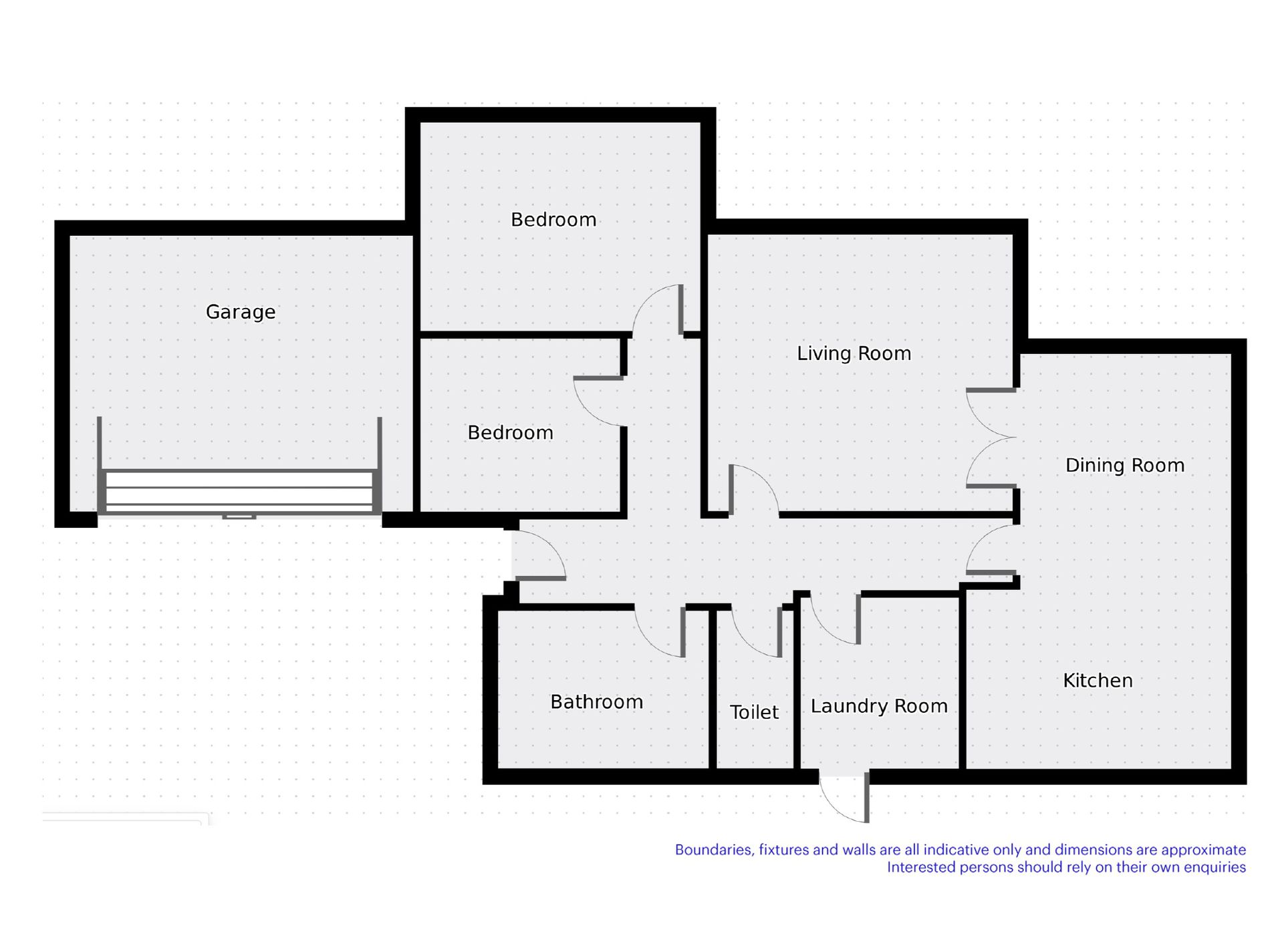
Over the past 18 years our vendors have enjoyed the convenient proximity, the comfort of the expansive 129sq m floor area, and peace of mind of the solid brick construction, on TC1 land.
The light-filled combined kitchen and dining area enable ease and convenience at meal time, and with double doors that flow through to the lounge you will be spoilt for choice when entertaining.
Sliding doors give an easy indoor-outdoor transition to the outdoor space with established easy care planting. This sheltered summer sun trap provides options for outdoor entertaining from brunch through to the evening - all in your private outdoor sanctuary.
Convenience and comfort continues throughout the house with 2 double bedrooms, a generous separate laundry, separate toilet and bathroom, and a double garage.
No matter what stage of life you’re at, whether settling down or starting up and looking to add value, 2/12 Algie holds plenty of opportunities.
The superior location and host of exceptional educational facilities and amenities at your doorstep will appeal to an array of purchasers looking to position themselves perfectly for the future.
Location, convenience and an opportunity to add your own design flair will ensure demand and popularity will be high. To ensure you won’t be disappointed, immediate urgency is recommended in viewing this secluded sanctuary.
This property is now under offer, if you would like to talk to us about our upcoming properties please give us a call.





















