Our vendors have made their intentions clear! Now priced at $579,000, this property MUST be sold. Contact us at your earliest convenience to arrange a private viewing to avoid disappointment.
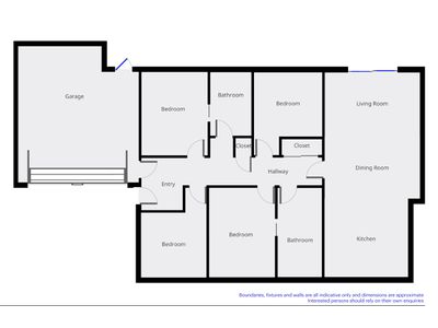
The finest in contemporary family living, this home truly does have it all. You will live on an enviable corner lot and enjoy the added convenience of having schools, shops, parks and a long list of amenities all within easy reach. The layout stretches over one level and boasts four good-size bedrooms and two well-appointed bathrooms while the open-plan living zone is also light-filled and spacious.
Whether you are a passionate home chef or simply love preparing meals for friends and family, the large open kitchen is guaranteed to impress. There is ample counter space and a suite of stainless steel appliances while plenty of storage and breakfast bar seating are also on offer.
Gleaming tile floors flow underfoot plus there is also a crisp neutral colour palette throughout, enhancing the bright and modern feel of the home. There is a double garage for secure vehicle storage, additional off-street parking space along the driveway and the corner location provides a good-size fenced yard, perfect for those with pets.
You will live just minutes from the Seven Oaks School and Oaklands School plus the New World Halswell supermarket is just a five-minute drive away. There are a host of dining options and cafes within easy reach along with high-quality amenities and picturesque parks. An 18-minute drive will take you into the heart of Christchurch, making this home ideal for those who commute into the city for work.




































