Download the property pack instantly at www.opes.co.nz

Jaw-dropping views await you at 7 Law Lane, a modern, stylish executive home positioned in a tranquil and sheltered setting in the highly desirable hill suburb of Mt Pleasant. Imagine gazing at an expansive vista sweeping across the estuary, Pegasus Bay, and beyond to the Kaikoura Ranges as you sip your morning coffee in bed. Don’t just dream it, make it a reality with this practically-sized home that offers so much bang for your buck.

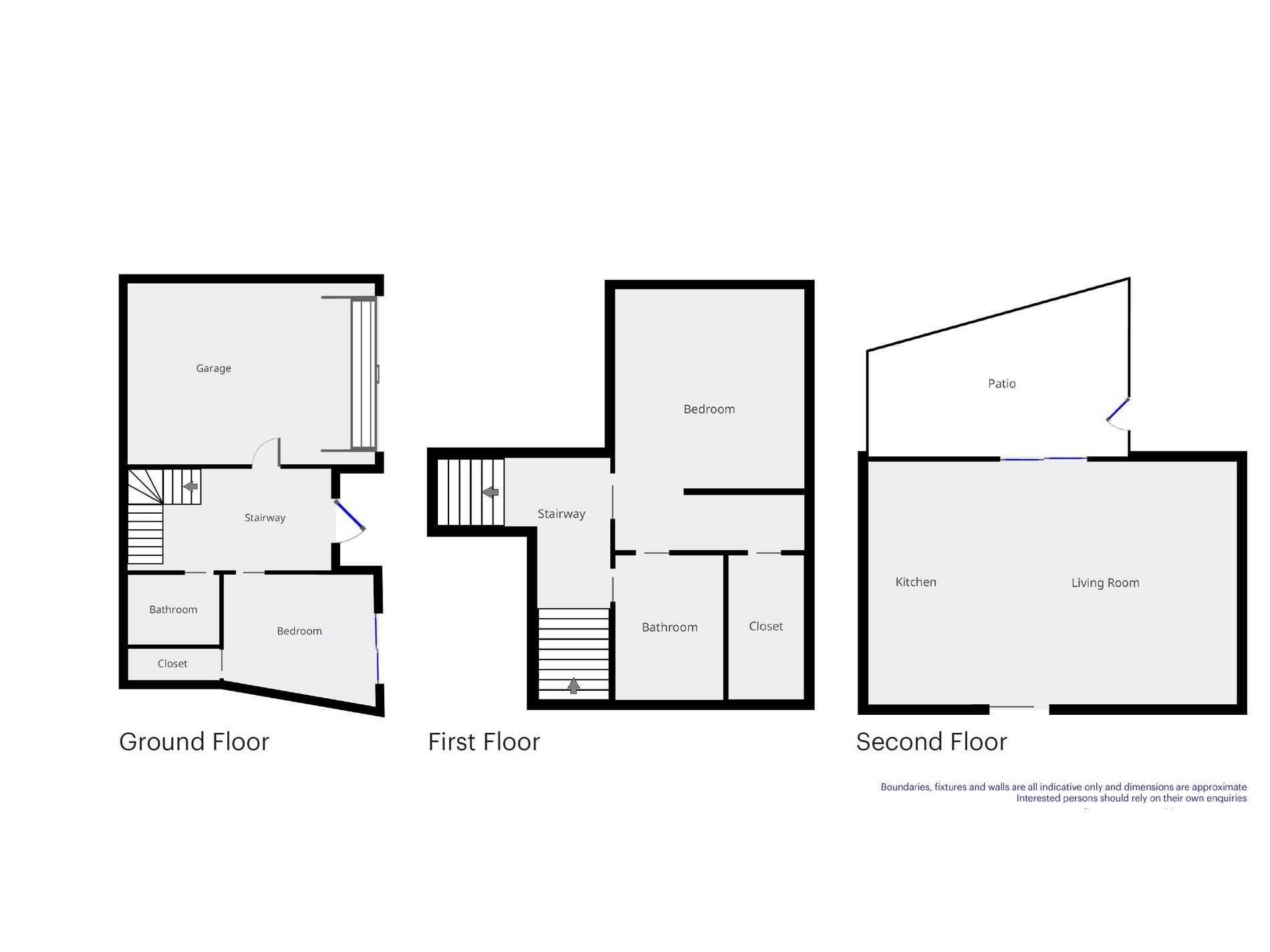
Young professionals, couples, and smaller families will appreciate the thoughtful use of space in this 212m2 home. Convenience begins with the drive-on section and oversized double garage through to the generously sized ground floor bedroom with ensuite bathroom and walk-in wardrobe.

Constructed over split levels, the enviable entry with double-height windows, flooded with light is an impressive offering. The mid-level houses a further spaciously proportioned bedroom, also with a walk-in wardrobe and bathroom. On the top level, you’ll find a fabulous, open-plan living space featuring lounge and dining areas, along with an immaculately appointed, entertainer’s kitchen with an island bench. Well-positioned windows, including skylights and large picture windows, frame the stunning view and flood the interiors with natural light. A bonus is an additional sunroom with a spa pool, perfect for soaking away the stresses of the day.

Outside, the home features expansive decks that maximize the spectacular views of the ocean, great for entertaining in the summer months. Two further off-street parks are provided on the property.

If you’ve been dreaming about a hill property, don’t miss the chance to view 7 Law Lane. With options to reconfigure the home to suit your individual requirements, this truly is a rarely-available opportunity. Contact us to find out more.