Download property information instantly www.opes.co.nz
Our vendor has made their intentions clear, we want this property gone! With our vendors now residing in the North island, their family built home in the heart of Fendalton is surplus to requirements.
Seldom do we see properties of this quality, and location come at a heavily discounted price.
Positioned For The Entire Family in an enviable position boarding the iconic Avon River, this post-quake build should be high on your Christmas shopping list.
Split over two-levels with an exterior that pays homage to yesteryear and an interior that incorporates all of the contemporary comforts and conveniences of today, the practicality of the design has resulted in a stunning yet homely residence perfectly positioned for modern family living.
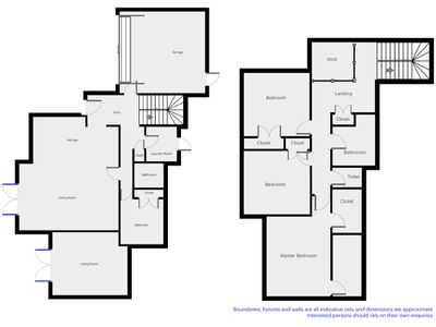
The lower level plays host to an open plan kitchen, dining and living room and a separate formal lounge. The formal lounge boasts tranquil views down to the stream, perfect for entertaining or perhaps a quieter moment. Future generations have been catered for through the convenience of a downstairs bedroom and ensuite. The remaining three double bedrooms occupy the second story, with the master suite featuring a walk-in robe and ensuite.
Comfort, cosiness and peace of mind is ensured through the double glazing, gas fire, heat pumps, HRV system and auto security gates.
Underpinning the value is the location with Fendalton Park, Riccarton House and Bush only moments away. For those looking to fulfil educational needs, zoned for the highly sought-after Christchurch Girls & Boys High Schools as well as Cobham Intermediate and Fendalton Open-Air school. In addition to being only walking distance to the University of Canterbury, no matter what age or stage, 53A Kotare St will have you covered.









































