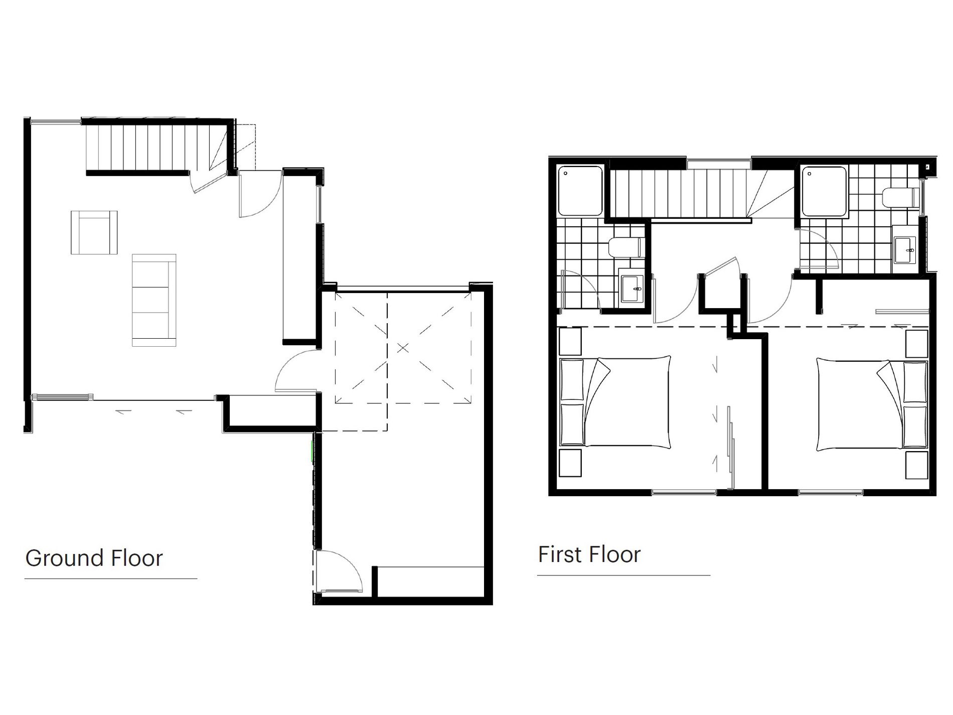
Join Christchurch’s evolution of inner city growth by purchasing intelligently at 303 Hereford. These architecturally designed, boutique townhouses with garaging have been designed to cater for all of your inner city needs.
Quality, style, and future generations are at the forefront of this contemporary design. Each of these two bedrooms, two bathroom townhouses on fee-simple titles with a garage, have been designed to ensure maximum visual appeal, with minimal maintenance. Carefully planned to maximize natural light and flow, the culmination offers a truly enviable level of design. Elegantly finished throughout, your eyes are drawn to the contemporary designed lounge and kitchen with stone benchtops and tiled splashbacks. Quality and convenience continues throughout with tiled bathrooms, private courtyard, and internal access garaging.
Location is essential to the success of any property, be it a first home purchase or an investment. These intelligently designed, architectural townhouses are certainly no exception. Positioned within the four avenues, you’ll be poised close to the fast developing City Centre, Latimer square, and the Avon Loop. With amenities and action all at your fingertips, you will be spoilt for choice. When all of your inner city needs are catered for, whatever your reason, the answer will be yes.
With the developers previous development selling out within a week, and the culmination of lack of quality and affordable living in this area, take this opportunity to contact us today to secure your elegant new home or investment to avoid disappointment.
Download brochure and price list at www.opes.co.nz
















