Variety is the spice of life and at 12 Lowe Street, you’ll have it in spades!

Showroom, Workshop, Warehousing and Accommodation ensure a myriad of options at your fingertips.

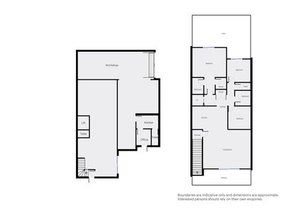
Ground Floor Workshop: 180sq m
Ground Floor Showroom and Workshop: 153sq m
First Floor Office/Residential: 155sq m
6 External Car Parks

Total Lettable Area: 488sq m

Centrally located in the sought after suburb of Addington, the three-bedroom, two-bathroom penthouse accommodation provides unparalleled functionally and options. Serviced by both stairs and a lift and featuring an expansive balcony looking out to the Porthills, all of your accommodation needs will be catered for.

Downstairs the spacious showroom, complete with glass walls on two sides and its own dedicated toilet facilities, offers the capacity for a range of undertakings. The workshop and warehouse area that includes 2 small offices with ample parking for 6 or more vehicles, tenants and owner-occupiers will see the underlying value and will be looking to capitalise on the plethora of possibilities.

Our vendor's tenure speaks volumes of this convenient pocket of the city and flexibility of this unique offering.

Seldom do properties with so much scope come to the market. Contact us directly for further details and to avoid disappointment.

Download Property Information Instantly at www.opes.co.nz